
当我们谈论英国的投资热点时,伦敦常常会是大家的首选。然而,最近的趋势表明,英国第二大城市——伯明翰这座位于英国心脏地带的城市正在逐渐引起投资者的注意。
本文将深入剖析伯明翰房地产市场的最新动态,并对其在2023年以及更远未来的发展趋势进行展望,揭示其为何成为投资者的新宠。
最新伯明翰报告总结
1. 2022年在建项目增加了近三分之一。
2. 伯明翰房地产市场活跃,创下新高。
3. 住宅市场持续增长,新建房屋供应不足,需求旺盛。
4. 办公空间在建设中的面积增加至866,969平方英尺,反映了对高级别办公空间的需求。
5. 伯明翰吸引了大量的英国和国际学生,教育设施和学生住宿的建设活动强劲。

图片来源:德勤
1. 伯明翰房屋数量创新高,繁荣的住宅市场
根据德勤的最新调查报告显示,新冠疫情加上供应链问题、材料供应和劳动力短缺,导致一些住宅计划的延迟完成,但也导致2022年该市交付的住宅单元数量创下历史新高。
有2,398套房屋上市,高于上一年的1,520套,并超过了2020年交付的创纪录的2,072套房屋。
总体来看,2022年正在建设的项目数量相比2021年增长了近三分之一,达到32个,其中13个是新开工项目,而去年为24个。这33个计划将提供6,487套住房。显示出投资者和开发商对伯明翰市场的信心。

图片来源:德勤
在2022年,就有112个住宅开发项目开始实施,总计为市场带来了14188个新住房单元。到2023年底,预计将有14987个新住房单元投入使用。
2. 新房市场:供不应求,豪华住宅的需求依然强劲
尽管今年新住宅计划的数量保持不变,但由于对豪华公寓和住宅的需求依然强劲,整个市中心的房产市场活跃度仍然很高。
到2022年,整个市中心的开发集中度发生了显着变化。2021年,珠宝区有九个活跃的住宅计划将交付1,080个单元。虽然计划的数量增加到13个,但在建单位的数量仅略微增加到1,175个。
今年,Glasswater Locks是最大的住宅新开工项目,将交付超过37层769套住宅。

图片:Glasswater Locks
Watkins Jones Group的Makers' Yard开发项目是第二大新住宅项目,建成后将提供551套BTR住宅(Build-to-Rent,即“建房出租”)。

图片来源:德勤
根据德勤的调查报告,伯明翰对新住房的需求持续超过供应。投资者信心与市场机会结合,推动买新房市场,也同时推动了BTR住宅领域的发展。
3. 20年大城市计划,英国最大最雄心勃勃的项目
伯明翰的20年大城市计划(20-year Big City Plan)被视为英国最大和最雄心勃勃的项目。

图片来源:birmingham.gov.uk
"大城市计划"是一个为期20年的市中心总体规划。它的愿景是鼓励并支持伯明翰继续转型为世界级城市中心。
它涵盖了建筑环境的所有方面,包括:
● 创建150万平方米的新建筑空间
● 创造超过50,000个新的工作岗位
● 每年为经济贡献21亿英镑
● 创建一个连接良好、高效且可步行的城市中心
● 提供65,000平方米的新的和改善的公共空间
● 提供28公里的改善的步行和骑行路线
● 提供超过5,000个新的住宅,以及新的休闲和娱乐设施,吸引更多的家庭
●推动五个区域的改造以支持城市中心的发展。
4. “突破天际线”,伯城住宅数量和规模都在扩大
伯明翰的住宅开发正在迅速增长,不仅数量上增加,规模上也在扩大,并且不断变化的天际线正在达到新的高度。
随着市中心的优质空间变得越来越稀缺,以及对位置优越的大型项目的持续需求依然强劲,只有一条路可以走——突破城市的天际线!

图片来源:Birmingham Live
完工的42层高的The Mercian以及正在建设中的49层高的Octagon将改变伯明翰的天际线,成为目前正在建设中的最高建筑。
5. 英联邦运动会后,全球的商业信心大幅提升
2022年,英联邦运动会的成功为伯明翰的经济带来了显著的影响,给英国经济贡献了8.707亿英镑,其中西米德兰地区获得了超过4.5亿英镑的经济利益。
运动会期间,伯明翰接待了超过500万名游客,体现了其强大的旅游吸引力和城市形象。
自运动会结束以来,伯明翰已经获得了两项重大全球体育赛事的主办权,进一步提升了城市的国际知名度。
除此之外,名企对该城市的商业信心显著提升。英国广播公司(BBC)在Digbeth设立新的广播中心。

图片来源:BBC
节目《厨艺大师》(MasterChef)计划从2024年开始在Digbeth Loc Studios进行制作。
高盛集团(Goldman Sachs)在One Centenary Way租用11万平方英尺的永久办公空间。
6. 商业办公市场仍蓬勃,办公空间的变化和新兴需求
随着企业的发展和办公需求的增加,伯明翰的办公空间市场也在稳步增长。
2022年,办公室开发项目的数量增加了43%,办公室空间增加了124%,总面积达到了213万平方英尺。其中,88.9%的办公室空间位于市中心。
伯明翰大型商业项目"Paradise Circus"在过去几年中对办公楼面积的数字产生了重大影响。该项目的第二阶段,包括"One Centenary Way"仍在建设中,"Three Chamberlain Square"最近开始动工。
根据伯明翰写字楼市场论坛的数据,2022年写字楼交易保持稳定,其中伯明翰市中心共有115处写字楼出租,总租用面积为692,700平方英尺,比上年增长21%。
伯明翰和其他大多数城市一样,对于符合新兴工作空间需求的A级、灵活的办公空间有着日益增长的需求。这些需求包括“可持续性”、“更大的协作空间”和“健康的办公室”,以应对未来可能发生的疫情。
7. 教育强地和最年轻城市,吸引了大量国际学生和投资
伯明翰是英国最早的“超级多元化”城市之一。它是来自187个不同国家的人们的家园,并且作为一个教育强地,继续吸引着来自英国和世界各地的学生。
它被认为“拥有欧洲最年轻的人口之一”的大都市,为该地区培养和留住人才提供了机会。
据高等教育统计局估计,2021/22 学年该市有超过93,500名学生,其中国际学生约占学生总数的19%。随着伯明翰庞大的学生人数继续逐年增长,大学也继续扩大教育设施。
8. 交通升级连通全英,HS2实现快速到达伦敦
伯明翰正处于一场大规模的公共交通升级中,这个升级项目不仅将影响城市中心,而且将进一步提升其周边地区和郊区的连通性。以下是一些主要的改进:
轻轨系统:
伯明翰已经投入巨资对其轻轨系统进行升级和扩展,增加新的车站和路线,以进一步提高该城市的交通连通性。
HS2高速铁路:
这是英国最大的基础设施项目之一,将使伯明翰成为全国最快速、最便利的交通网络的中心。
HS2将使伯明翰与伦敦的旅行时间大大缩短,并将带来大量的商业和零售机会。

图片来源:HS2
道路改善工程:
伯明翰正在进行一系列的道路改善工程,以减少交通拥堵,提高道路安全性,以及创建更多的步行和自行车通道。
公交系统的更新:
公交系统也在接受现代化的改造,将提升公交服务的质量和效率。
这些交通升级计划也将为投资者提供新的机会,包括商业、零售和住宅开发的机会。现在正是入场时候!
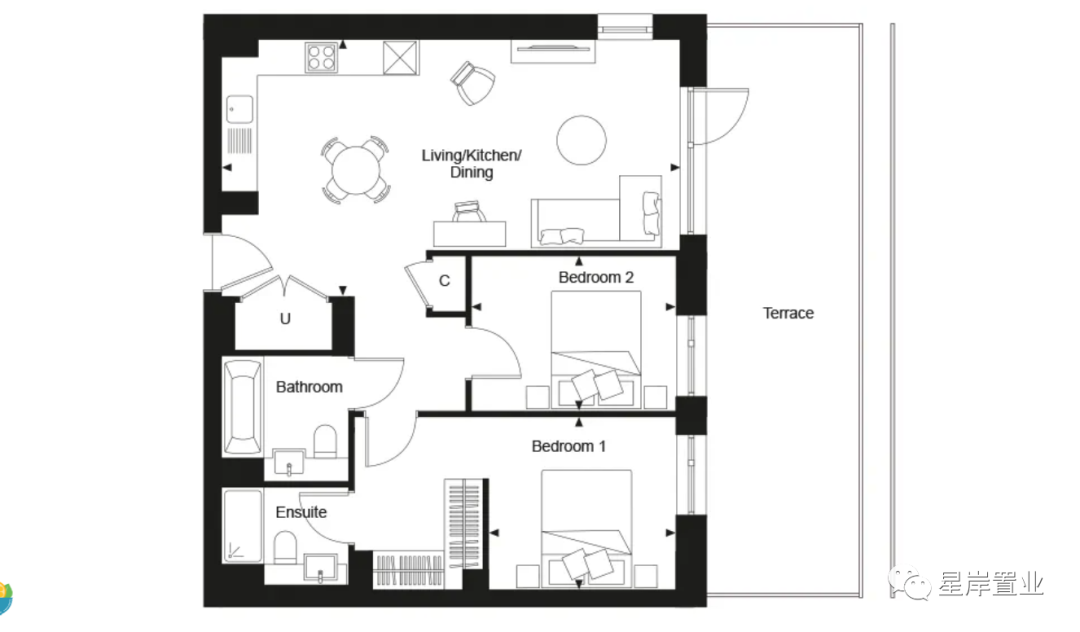
9. 伯明翰投资自住机会
现全新二居室只需首付33.5万,人民币335万起,即可买入伯明翰市中心豪华住宅雪珊一品,即买即住或者出租。
现在还在活动期,抓住机会,达到在伯明翰投资的第一年获得10%回报(活动内送大礼包,还有现金和包租等)
马上添加微信:ChristieUK

雪珊一品是由著名开发商在伯明翰市中心首批配套完善的豪华公寓住宅项目。它位于运河边,步行1.3千米即可到达地标性购物中心牛环(Bullring&Grand Central)。

一共占地288,000平方尺,还包括了3个优美的园林平台花园,可以将伯明翰城市风光以及英国工业革命时期遗留下来的Fazeley Canal运河的美景尽收眼底。

地址:Birmingham B4
住户尽享高端设施,包括:健身房、桑拿房、蒸汽房。

还有12座的住户影院、豪华业主休息大厅、私人会议室等高端私人会所配套设施。

设施:有高端私人会所配套,包括24小时礼宾部,业主专用健身房,桑拿房,蒸汽房,12座的住户电影院,业主会客大厅、三个园林平台花园、停车场。

两房两卫户型推荐
价格:£385,000
室内:816 sq. ft.
交付:现房

两房两卫户型推荐
价格:£395,000
室内:757 sq. ft.
交付:现房

这是我们最多投资客人购买的现房项目之一。
在2023年活动期内订房,投资回报率第一年就能达到10%的推荐项目(其中包括赠送礼包,现金和包租等组合配置)
快赶紧抓住机会,扫描下方二维码,或添加微信号(ChristieUK)咨询了解详情吧!

星岸置业会持续给大家带来真正诚意满满的干货和带大家看真实的房子。笔芯!感谢支持!
联系星岸置业
英国星岸置业成立于伦敦,是英国专业领先的房地产服务商之一,致力于为全球客户提供一站式置业全托管服务,包括:
✔ 住宅销售代理
✔ 房产买卖
✔ 贷款推荐
✔ 房屋出租和管理
✔ 移民安家
✔ 专业顾问
服务涵盖伦敦、伯明翰、曼彻斯特和谢菲尔德等多个城市。我们在英国拥有多年地产行业经验,旨在为客户争取最大利益,一步到位。
Whatsapp: +44 (0)7543 589 585
Wechat: ChristieUK
官网:www.cnconsulting.co.uk
版权声明
一、本网站所有原创作品,其版权属于本网站所有。其他媒体、网站或个人转载使用时不得进行商业性的原版原式的转载,也不得歪曲和篡改本网站所发布的内容。
二、本网站转载其它媒体作品的目的在于传递更多信息,并不代表本网站赞同其观点和对其真实性负责;其他媒体、网站或个人转载使用时必须保留本站注明的文章来源,并自负法律责任。
三、被本网站授权使用的单位,不应超越授权范围。
四、本网站提供的资料如与相关纸质文本不符,以纸质文本为准。
五、如因作品内容、版权和其它问题需要同本网站联系的,请在本网站发布该作品后的30日内进行。